A VENDRE 135 m² DE BUREAUX POUR INVESTISSEUR ZONE REIMS FARMAN
Idéal investisseur, A VENDRE à Farman 1 cellule de bureaux d'environ 135 m2 louée 15 863euros HT/HC bail 3/6/9 ans d'avril 2017 Parking en foisonnement libre Disponible de suite
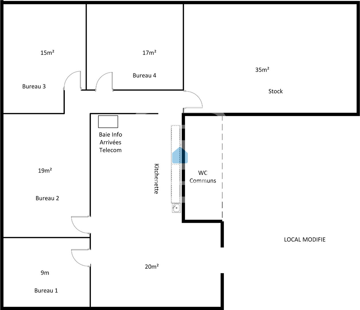
- Surface totale : 135 m²
- Prix vente : 270 000 €
Prix : 270 000 € *
* Honoraires à la charge du vendeur
Partager cette annonce :
Référence : 530
Demande d'informations

Nous contacter
Mail : [email protected]
Téléphone : 03.26.88.96.93
5 rue Théodore Dubois
51100 REIMS- Situation
lundi au vendredi : 9h00 -12h30 / 14h00 -19h00
samedi : 9h00 à 12h / 14h à 18h30
Voulez-vous être rappelé ?