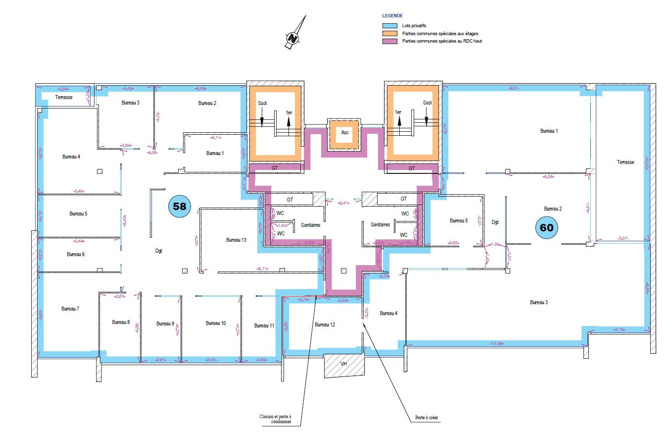
305 M2 DE BUREAUX RDC CLAIRMARAIS
Emplacement idéal : À proximité immédiate de la gare TGV Reims Centre, ce plateau de bureaux bénéficie d'un emplacement stratégique, parfait pour une activité professionnelle avec un accès rapide aux transports en commun. Caractéristiques du bien : Superficie : Environ 305 m² Disposition : 3 bureaux 1 open-space 1 salle de réunion 1 salle de repos Luminosité : Forte luminosité naturelle dans tous les espaces, créant un environnement de travail agréable et dynamique. Confort : Bureaux bien agencés, offrant un cadre idéal pour optimiser votre activité. Parking : 7 emplacements de parking privatifs viennent compléter ce bien, garantissant un confort pour vos collaborateurs et clients. Ce plateau de bureaux est parfait pour des entreprises recherchant un espace moderne, lumineux, et bien situé, à deux pas de la gare. Pourcentage d'honoraires preneur : 15 % du loyer annuel HT Charges locatives : 11000' HT/an Taxe foncière : 5200'/an Disponibilité : Immédiate Pour toute information complémentaire ou pour organiser une visite, n'hésitez pas à nous contacter.
- Surface totale : 305 m²
- Prix vente : nous consulter
- Prix location : 42 696 € HT / an
soit 3 558 € HT / mois
Loyer : 42 696 € HT / an
Partager cette annonce :
Référence : 1253
Demande d'informations

Nous contacter
Mail : [email protected]
Téléphone : 03.26.88.96.93
5 rue Théodore Dubois
51100 REIMS- Situation
lundi au vendredi : 9h00 -12h30 / 14h00 -19h00
samedi : 9h00 à 12h / 14h à 18h30
Voulez-vous être rappelé ?